Houses SB


INFO

Локация:    гр.Сапарева баня

Тип:        Ваканционни къщи

Площ /РЗП/: 440 кв.м

Клиент:     Частен

Година:     2019

TEXT

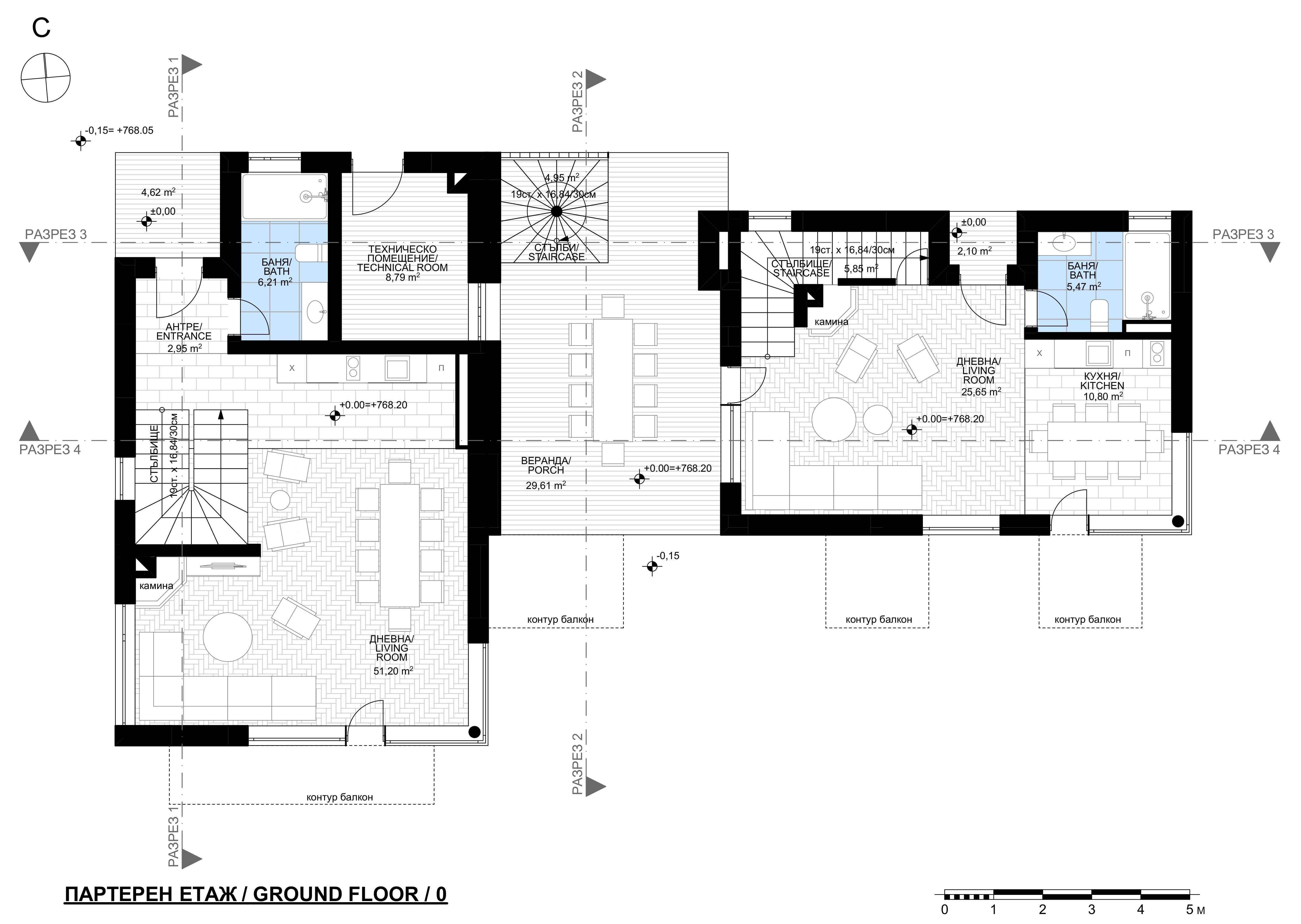
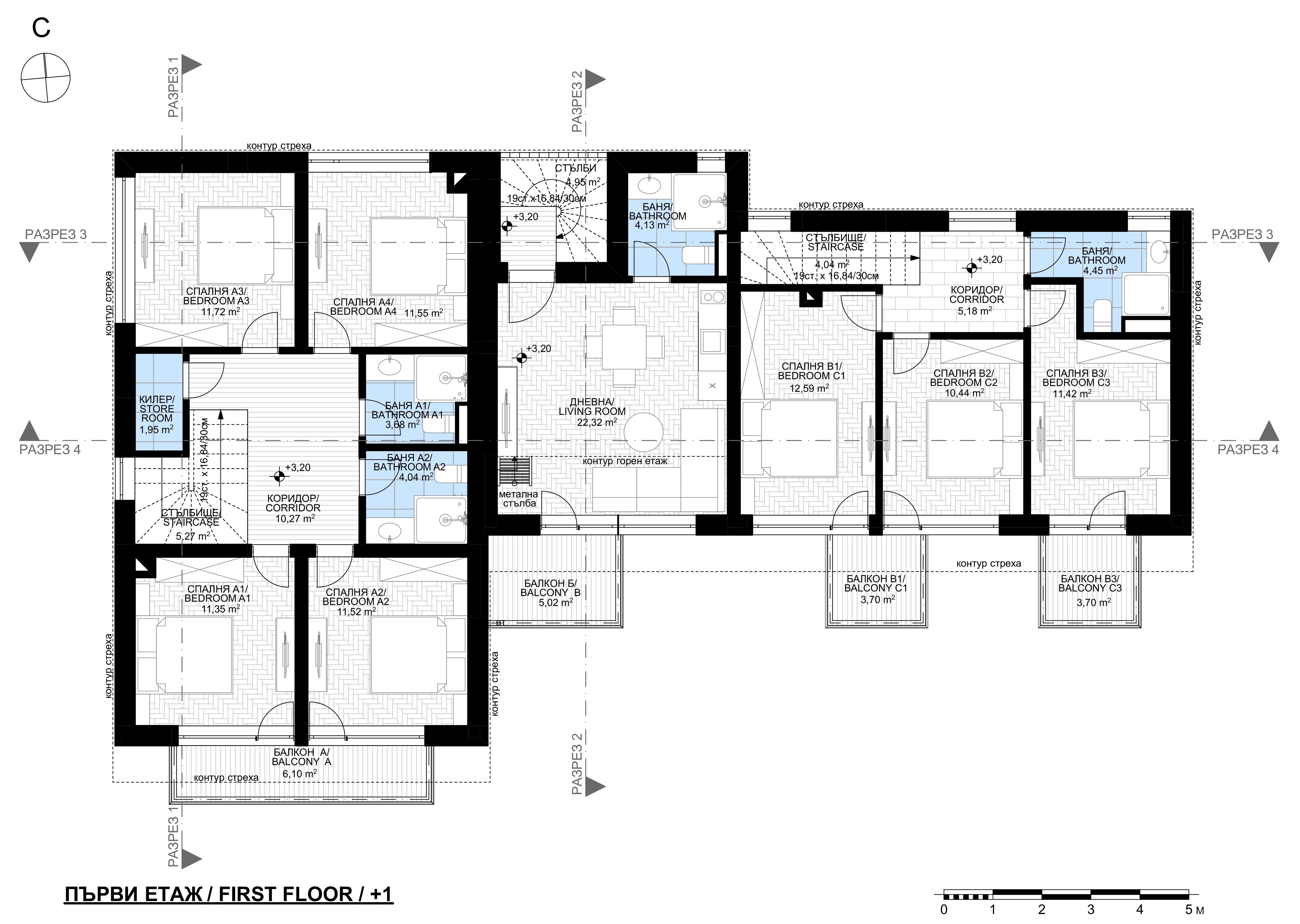
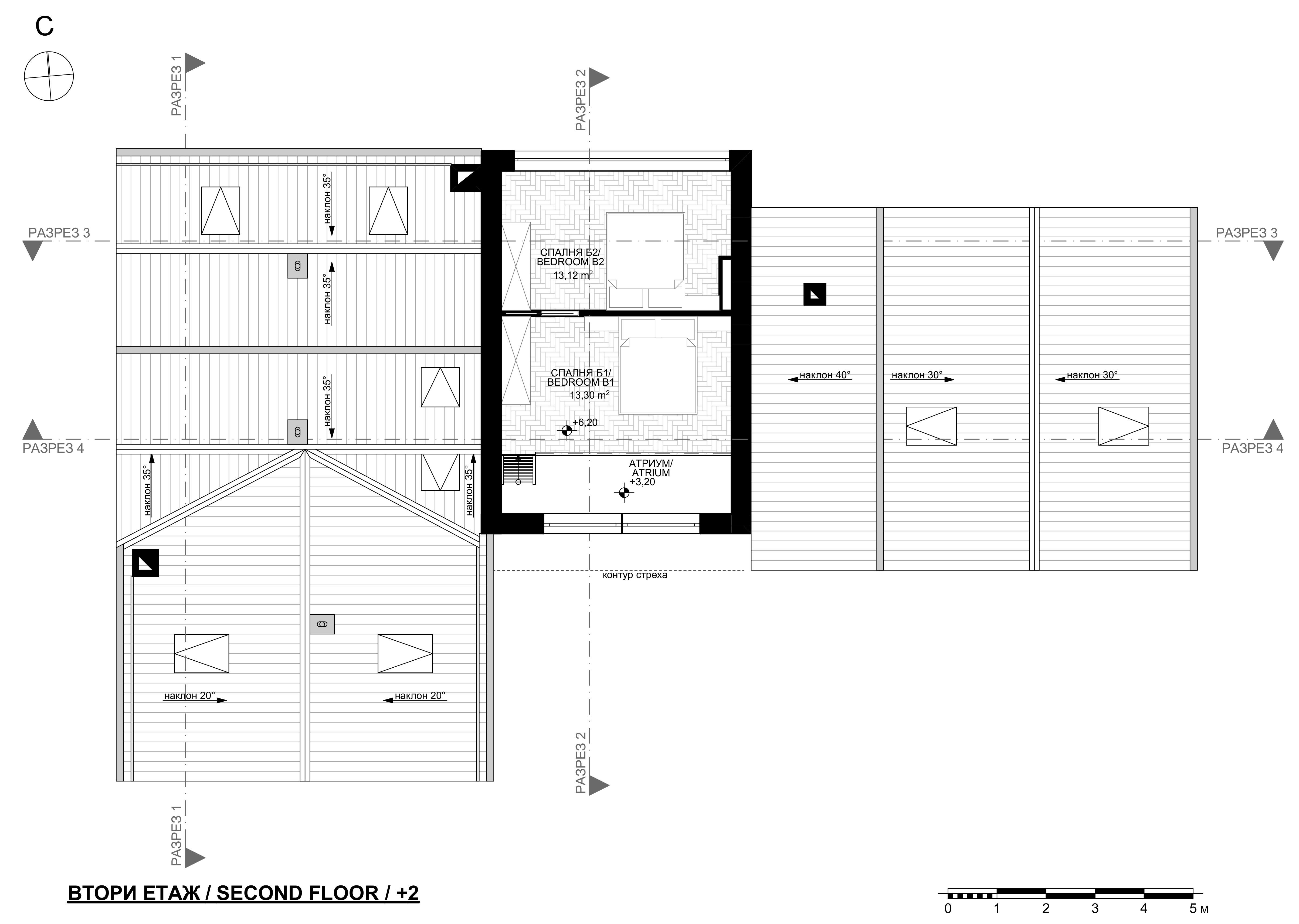
Ваканционни къщи разположени в полите на Рила, в малкото курортно градче Сапарева баня , с прекрасна гледка към планината, чист въздух и спокойна атмосфера, подходящи за целогодишен отдих сред природата.

Главно предизвикателство в разработването на проекта беше да обособим три редови къщи в рамките на малък парцел от 605кв.м. Всяка къща събира комфортно  8, 6 или 4 човека , съответно с 4,3 и две спални помещения, големи дневни с камина, кухня към тях и маси за хранене, просторни бани с прозорци към планината и покривни табакери, тараси към спалните и веранди за двете по-големи къщи. В северният край на двора има достатъчно място за паркиране, а на юг остава свободна дворна площ за игра и озеленяване. 

В имота има съществуваща стара къща която събаряме, но запазваме старата асма в южният край на двора, която ще хвърля приятна шарена сянка над верандата.

Водещ мотив при дизайна на комплекса беше използването на естествени материали- като дърво, камък и метал ; оптимално използване на слънчевата светлина и топлина; големи прозорци за максимално оползотворяване на гледката към планината, висок клас на енергийна ефективност и функционални пространства с индивидуална атмосфера.

© 2019 Mezame studio. All Rights Reserved